买下两套房,打通成200平大平层!三代同堂住,感觉比复式楼还好

来源:互联网 阅读:- 2020-09-09 13:53:03

三代同堂住,是不得不面对的现实问题。一起居住可以相互照顾,还可以节省生活成本,但对于居住空间就会有很多要求。既要享受三代同堂的美好,又要保持独立的空间,怎么办呢?不妨看看接下来这位屋主,买下同一层两套房,打通直接做一个大平层,设计上考虑到每个家庭成员的习惯好喜好,满足三代人的不同需求,同时透露着大气,感觉比复式楼还好。(图:尚高装潢设计)

买下两套房,打通成200平大平层!三代同堂住,感觉比复式楼还好

原始平面布置图,由一套120平和一套80平的房子组成。

买下两套房,打通成200平大平层!三代同堂住,感觉比复式楼还好

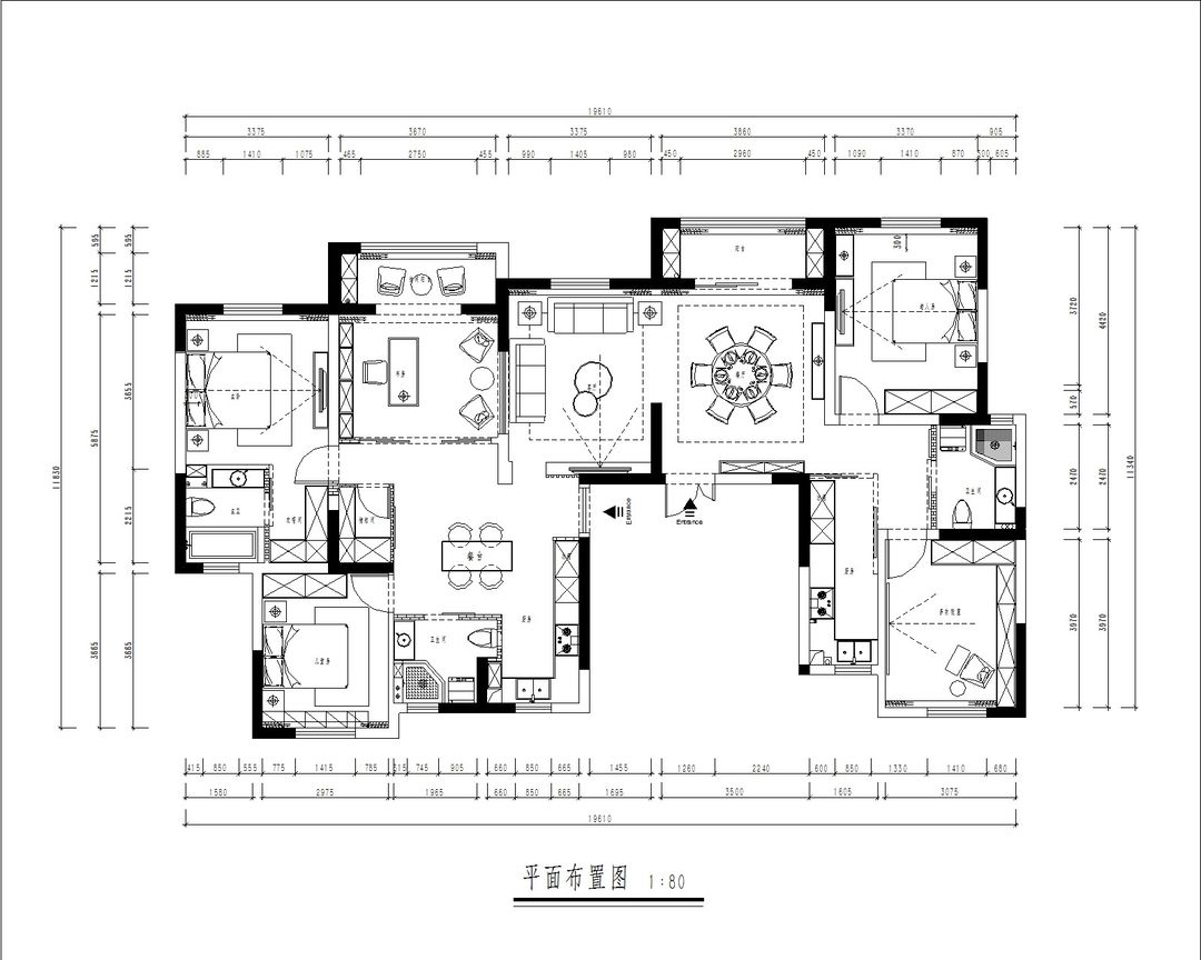
装修布置图,将两套房子打通重组成200平的大平层。装修上没有定义具体风格,融入每个人的生活方式,去构造一种生活场景。

买下两套房,打通成200平大平层!三代同堂住,感觉比复式楼还好

客厅简洁舒适,面积不是很宽敞,因此在设计的时候,将书房与客厅隔断改成通透的玻璃,延伸空间视觉更显通透开阔。电视比背景墙要长,因此做了玻璃延伸,美观空间又通透。悬挂式电视柜,无门把手设计,体现出简约轻盈感。

买下两套房,打通成200平大平层!三代同堂住,感觉比复式楼还好

拆除非承重墙,将两套房子打通,既有了独立的生活空间,又方便彼此照顾。承重墙用木饰面板上墙,与电视墙保持色调一致,视觉统一美观。圆形茶几简易实用,占用面积少方便来回走动,同时与餐厅圆桌相呼应。

买下两套房,打通成200平大平层!三代同堂住,感觉比复式楼还好

餐厅简易的桌椅,更符合年轻人的审美。预先留出冰箱位置,嵌入式摆放,顶部与高柜齐平视觉效果更美观。木质的温润舒适与整体格调融合,不光有高级灰,也有原木的暖。

买下两套房,打通成200平大平层!三代同堂住,感觉比复式楼还好

买下两套房,打通成200平大平层!三代同堂住,感觉比复式楼还好

两套房打通后,拥有两个厨房。开放式厨房主要以烘焙为主,L型的布局设计,简单的流线型动线操作,让厨房生活更加轻松高效。咖啡机、面包机、蒸箱,烤箱等厨房电器,满足了女主人做烘焙的生活乐趣。

买下两套房,打通成200平大平层!三代同堂住,感觉比复式楼还好

买下两套房,打通成200平大平层!三代同堂住,感觉比复式楼还好

打通后拥有一个大餐厅,选择了大理石圆桌,日常或家庭聚会都很实用。一幅黑白壁画,配合灯光做出层次,营造简约大气的用餐氛围。进门鞋柜为了使用方便,吊柜底部特意安排了带灯作为补充光源。

买下两套房,打通成200平大平层!三代同堂住,感觉比复式楼还好

买下两套房,打通成200平大平层!三代同堂住,感觉比复式楼还好

平时老人在家煮饭,因此中厨设计在老人房这边,考虑到油烟和采光通透,做了L型窄边框吊轨移门,煮饭的时候关上,隔绝油烟也不影响空间通透效果。

买下两套房,打通成200平大平层!三代同堂住,感觉比复式楼还好

买下两套房,打通成200平大平层!三代同堂住,感觉比复式楼还好

书房简洁通透,四扇吊轨移门打造开阔视野,日常清洁也简单许多。儒雅的色调与软装搭配,给书房增添了些许文学气息,围棋桌满足了小朋友的爱好。书房和客厅之间的玻璃隔断上方设计了百叶帘,灵活实用。

买下两套房,打通成200平大平层!三代同堂住,感觉比复式楼还好

买下两套房,打通成200平大平层!三代同堂住,感觉比复式楼还好

主卧整体浅色调为主,床头硬包融入一条爱马仕橙的块面,既不脱离整体的高级灰,又给卧室增添一丝活力感。

买下两套房,打通成200平大平层!三代同堂住,感觉比复式楼还好

主卫设计很简洁,白墙灰地哑光质感。浴室柜做了挑空,日常打理更方便。镜柜做了光源补充,洗漱的时候不会背光。

买下两套房,打通成200平大平层!三代同堂住,感觉比复式楼还好

儿童房Tiffany蓝为主调,进门一股清新薄荷感扑面而来。富有童趣的软装和装饰品,让儿童房更显活泼,窗台下做一排矮柜增加储物空间。


推荐阅读:无锡在线